近日,南京航空航天大学江北新区国际校区规划设计方案批前公示发布。据了解,南航江北新区国际校区位于顶山街道产业技术研创园内,定位为面向未来世界科技前沿和国家战略需求,建成后主要招收研究生。
项目建设
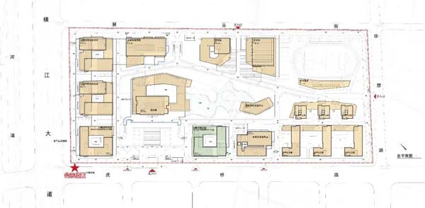
项目位于江北新区顶山街道产业技术研创园内,东至慧音街、西至虎桥路、南至华慧路、北至横江大道,占地面积约26.59万平方米。
规划用地性质为A31高等院校用地,容积率≤2.5,绿地率≥35%,建筑高度≤80m,建筑密度≤30%。总建筑面积约38.48万平方米,其中:地上建筑面积约32.34万平方米;地下建筑面积约6.14万平方米。
主要建设内容包括综合楼、教学科研楼、国际联合实验室、食堂及保障用房、学生公寓、地下车库等等。

▲项目区位图

▲总平面示意图
以上项目各项指标符合设计要点,并满足规划法则规范要求。根据南京市建设项目规划公示相关规定,对该项目进行批前公示,征询公众意见。如有意见者,请向相关部门反映。
据了解到,南京江北新区与南京航空航天大学在2018年8月签署了《共同推进南京航空航天大学江北新区国际校区建设合作框架协议》。

效果图
南航国际校区是中外合作办学和新兴交叉学科发展为一体的非独立法人国际校区,定位为面向未来世界科技前沿和国家战略需求。“江北国际校区要实现人才培养的国际化、科学研究国际化、师资队伍建设的国际化。”在2018年的签约仪式上,南航原校长聂宏说,学校初步考虑建设的国际化基地包括3个“111计划”引智基地,国际联合实验室,包括中美学院、中德学院以及中法学院在内的国际学院等。未来该校区主要以招收研究生为主,包括南航中外合作办学的研究生以及国外招收来的国际学生。
新校区东邻滨江大道,西靠横江大道,南临长江三桥,北近长江五桥,规划用地面积约400亩。

效果图
根据协议,南航和江北新区将全面建立战略性、紧密型合作关系,深化人才、技术、资源的共享与互动,积极推进南京航空航天大学国际校区建设,促进江北新区与南京航空航天大学共同发展。
注:本文内容来源南京新闻、中国江苏网,由江苏招生考试网团队(微信公众号:jszkwx)排版编辑,如有侵权,请及时联系管理员删除。

